Taylor Patterson Estate Agents

5 Sharry Drive Lisburn, BT27 4LL

5 Bed Semi-detached House For Sale

£259,950

Print additional images & map (disable to save ink)

Photo 1 of 5 Sharry Drive, Lisburn

Telephone:

028 9266 9030

View Online:

www.taylorpattersonestateagents.com/1043760

Key Information

Address 5 Sharry Drive Lisburn, BT27 4LL
Price Last listed at Offers over £259,950
Style Semi-detached House
Bedrooms 5
Receptions 2
Bathrooms 2
Heating Gas
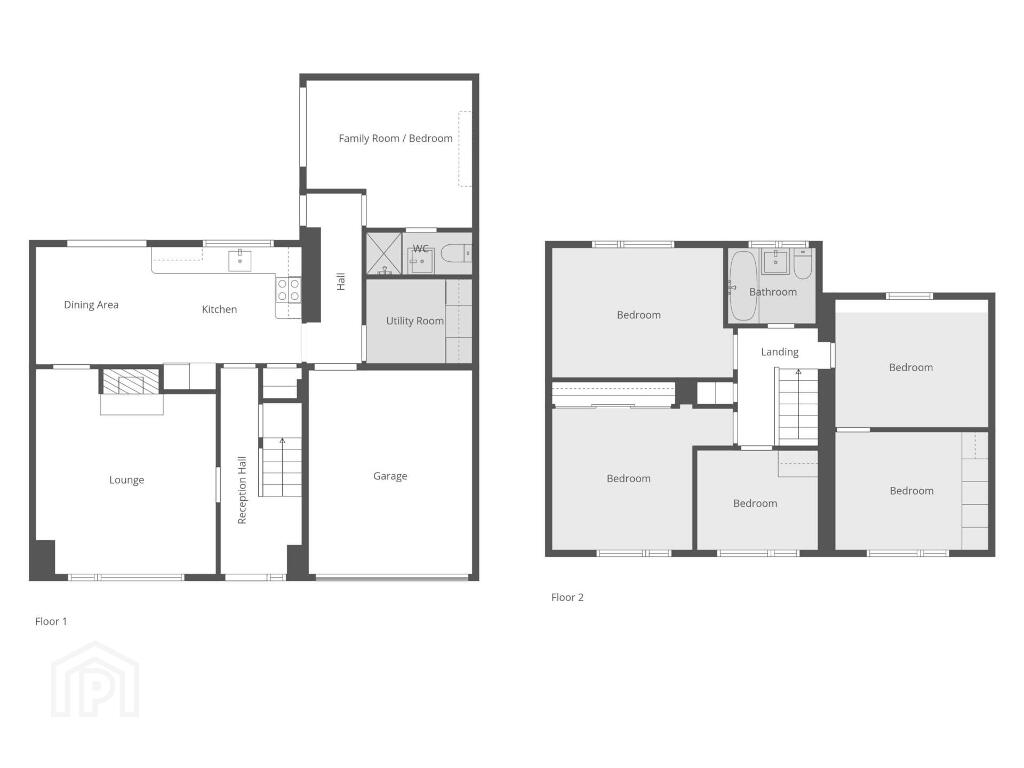
Size 131 sq. metres
EPC Rating D68/C73
Status Sale Agreed

Additional Information

A tastefully presented extended semi-detached home situated in a cul de sac location just off the Moss Road which runs between Belsize Road and Belfast Road.

The property offers spacious and flexible accommodation having been extended on both the ground and first floors, providing a Downstairs Shower Room, along with Utility Room, as well as additional accommodation on each floor.

The first floor Bedroom 4 is currently divided into 2 Bedrooms with shared access.

Conveniently located, many amenities are close to hand including shops, schools and bus routes, whilst Belfast is easily accessible via the nearby Boomers Way.

Accommodation comprises:- Reception Hall; Lounge; Kitchen/Dining; Rear Hallway; Utility Room; Family Room/Bedroom with Ensuite Shower Room; Integral Garage.

First floor: Bedroom 1 with range of built-in wardrobes; Bedrooms 2 and 3; Bedroom 4 (currently divided into 2 rooms); Bathroom.

Specification includes: PVC double glazed windows; Gas fired central heating; PVC fascias.

Outside: Cobble paved driveway to front. Integral Garage (4.52 x 3.49) (14`10" x 11`5") with roller door, light and power.
Enclosed landscaped rear garden with artifical grass and covered paved patio area. Raised garden pond. Light and tap. Timber fence surround.

GROUND FLOOR

RECEPTION HALL
uPVC double glazed entrance door and side panel. Understairs storage. Laminate wooden floor.

LOUNGE - 4.42m (14'6") x 4.07m (13'4")
Feature fireplace with cast iron inset, granite hearth and wooden surround. Oak flooring. Coved ceiling.

KITCHEN/DINING - 6.07m (19'11") x 2.87m (9'5")
Range of `Shaker` style high and low level units. Belfast sink with mixer tap. 4 ring touch hob with stainless steel extractor unit over. Quartz worktop. Built-in double oven. Integrated microwave. Integrated dishwasher and fridge freezer. Part tiled walls. Tiled floor. uPVC double glazed `French` doors.

REAR HALLWAY

UTILITY ROOM - 2.38m (7'10") x 1.88m (6'2")
Plumbed for washing machine. Space for tumble dryer. Tiled floor.

FAMILY ROOM/BEDROOM - 3.74m (12'3") x 3.53m (11'7")
uPVC double glazed `French` doors to garden. Laminate wooden floor.

ENSUITE SHOWER ROOM
To include tiled shower enclosure; vanity wash hand basin with mixer tap; and low flush w.c. Part tiled walls.

FIRST FLOOR

BEDROOM 1 - 3.25m (10'8") x 3.03m (9'11")
Built-in wardrobes with sliding doors. Feature panelled wall. Laminate wooden floor.

BEDROOM 2 - 3.78m (12'5") x 2.87m (9'5")
Laminate wooden floor.

BEDROOM 3 - 2.97m (9'9") x 2.18m (7'2")
Storage cupboard.

BEDROOM 4 - 3.5m (11'6") x 3.28m (10'9")
Laminate wooden floor.

BEDROOM 5 - 3.5m (11'6") x 2.61m (8'7")
Access via Bedroom 4.
Laminate wooden floor.

BATHROOM
White suite to include bath with centred mixer tap and shower attachment; floating wash hand basin with mixer tap; and low flush w.c. Fully tiled walls. Tiled floor.



Directions
LOCATION: Off the Moss Road which returns between Belsize Road and Belfast Road.

what3words /// kicks.horns.struck

Notice
Please note we have not tested any apparatus, fixtures, fittings, or services. Interested parties must undertake their own investigation into the working order of these items. All measurements are approximate and photographs provided for guidance only.
  • Taylor Patterson Estate Agents

    Taylor Patterson Estate Agents

    028 9266 9030

Photo Gallery

Photo 1 of 5 Sharry Drive, Lisburn Photo 2 of 5 Sharry Drive, Lisburn Photo 3 of 5 Sharry Drive, Lisburn Photo 4 of 5 Sharry Drive, Lisburn Photo 5 of 5 Sharry Drive, Lisburn Photo 6 of 5 Sharry Drive, Lisburn Photo 7 of 5 Sharry Drive, Lisburn Photo 8 of 5 Sharry Drive, Lisburn Photo 9 of 5 Sharry Drive, Lisburn Photo 10 of 5 Sharry Drive, Lisburn Photo 11 of 5 Sharry Drive, Lisburn Photo 12 of 5 Sharry Drive, Lisburn Photo 13 of 5 Sharry Drive, Lisburn Photo 14 of 5 Sharry Drive, Lisburn Photo 15 of 5 Sharry Drive, Lisburn Photo 16 of 5 Sharry Drive, Lisburn Photo 17 of 5 Sharry Drive, Lisburn Photo 18 of 5 Sharry Drive, Lisburn Photo 19 of 5 Sharry Drive, Lisburn Photo 20 of 5 Sharry Drive, Lisburn Photo 21 of 5 Sharry Drive, Lisburn Photo 22 of 5 Sharry Drive, Lisburn Photo 23 of 5 Sharry Drive, Lisburn Floorplan 1 of 5 Sharry Drive, Lisburn EPC 1 of 5 Sharry Drive, Lisburn

Location

Visit www.taylorpattersonestateagents.com for further details.