Taylor Patterson Estate Agents

Building Site North Of, 161 Ballynahinch Road Lisburn, BT27 5LP

Residential Land For Sale

Offers around £125,000

Print additional images & map (disable to save ink)

Photo 1 of Building Site North Of, 161 Ballynahinch Road, Lisburn

Telephone:

028 9266 9030

View Online:

www.taylorpattersonestateagents.com/1071105

Key Information

Address Building Site North Of, 161 Ballynahinch Road Lisburn, BT27 5LP
Price Offers around £125,000
Land type Residential Land
Status For sale

Additional Information

A well located building site located in this popular residential area on the edge of Lisburn. Conveniently placed a short drive from Lisburn City Centre and the Motorway for those wishing to commute.

The property passed has been thoughtfully designed and provides well designed accommodation over two floors.

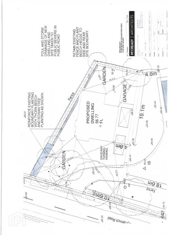
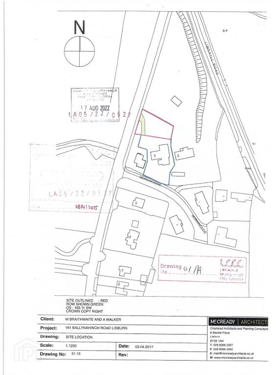
Full planning permission has been granted - Ref number: LA05/2022/0627/F.

Building Control Approval. Foundations have begun and inspected by Building Control.

The property will be accessed via a shared driveway with two other properties.

Further plans available on request.




GROUND FLOOR

LOUNGE - 6.7m (22'0") x 3.9m (12'10")
plus bay

LIVING ROOM - 5.8m (19'0") x 3.8m (12'6")

KITCHEN/DINING/SNUG - 5.9m (19'4") x 5.6m (18'4")

UTILITY - 3.9m (12'10") x 2m (6'7")

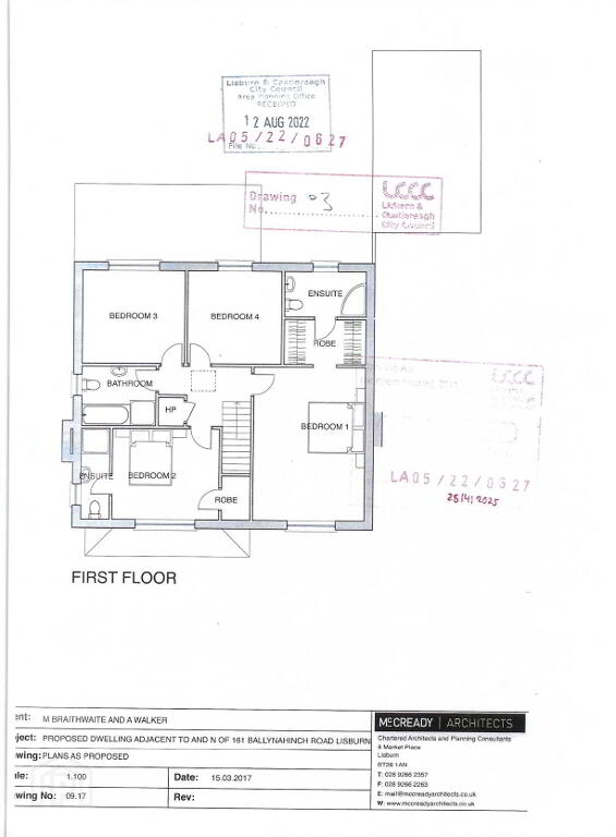
FIRST FLOOR

BEDROOM 1 - 5.4m (17'9") x 3.9m (12'10")

WALK-IN WARDROBE - 2.8m (9'2") x 1.65m (5'5")

ENSUITE - 2.8m (9'2") x 1.65m (5'5")

BEDROOM 2 - 3.7m (12'2") x 3.2m (10'6")

WARDROBE - 1.5m (4'11") x 1m (3'3")

ENSUITE - 3.2m (10'6") x 1m (3'3")

BEDROOM 3 - 3.6m (11'10") x 3.4m (11'2")

BEDROOM 4 - 3.4m (11'2") x 3.3m (10'10")

BATHROOM - 2.6m (8'6") x 2.2m (7'3")

HOTPRESS - 1m (3'3") x 0.9m (2'11")

GARAGE - 6m (19'8") x 3.6m (11'10")



Directions
LOCATION: Located fronting the Ballynahinch Road.

what3words /// rattled.topics.shocks

Notice
Please note we have not tested any apparatus, fixtures, fittings, or services. Interested parties must undertake their own investigation into the working order of these items. All measurements are approximate and photographs provided for guidance only.
  • Taylor Patterson Estate Agents

    Taylor Patterson Estate Agents

    028 9266 9030

Photo Gallery

Photo 1 of Building Site North Of, 161 Ballynahinch Road, Lisburn Photo 2 of Building Site North Of, 161 Ballynahinch Road, Lisburn Photo 3 of Building Site North Of, 161 Ballynahinch Road, Lisburn Photo 4 of Building Site North Of, 161 Ballynahinch Road, Lisburn Photo 5 of Building Site North Of, 161 Ballynahinch Road, Lisburn Photo 6 of Building Site North Of, 161 Ballynahinch Road, Lisburn

Location

Visit www.taylorpattersonestateagents.com for further details.